建築条件無し売土地につき、お好きな工務店やハウスメーカーで建築可能!
角地につき、採光・通風良好!閑静な住宅地!
阪急『東向日駅』まで徒歩15分!
更新日/2026年03月13日 次回更新予定日/情報提供より8日以内に更新
お問い合わせ番号/ 5179
土地
1,980万円
京都府向日市寺戸町大牧- 最寄駅
-
- 阪急電鉄京都線
- 東向日駅徒歩15分
- 東海道本線
- 向日町駅徒歩21分
- 阪急電鉄京都線
- 洛西口駅徒歩27分
- 土地面積/坪数
- 104.09㎡ / 31.48坪
- 建物構造
- 木造 -
新価格
この物件の主な特徴
閑静な住宅地 角地 前道6m以上 2沿線以上利用可 日当り良好 上水道 公営 汚水 下水道 ガス 都市ガス 周辺交通量少なめ スーパー 徒歩10分以内 小学校 徒歩10分以内 建物プラン例有り 建築条件なし ※設備名をクリックで対象の設備の物件一覧を絞り込みローンシミュレーション
- 物件価格
- 1,980万円
- 金利
- 返済期間
-
年
※物件によってはローン年数が変わる場合がございます。
- 頭金
-
万円
※半角数字でご入力ください。
- ボーナス併用支払い
-
併用する
1980.00万円のうちボーナス返済分
万円
※半角数字でご入力ください。
- 月割返済額
- ボーナス支払い額
(年2回) - 坪単価
- 62.90万円
- 学校区
-
- 小学校区
- 第六向陽小学校 徒歩4分
- 中学校区
- 西ノ岡中学校 徒歩25分
- 公共設備
-
- ガス
- 都市ガス
- 水道
- 公営水道
- 汚水
- 公共下水
- 雑排水
- -
- 接道状況 他
-
- 向
- 二方
- 角地
- 角地
- -
- 南東
- 幅員
- 5.00m
- 接面
- -
- -
- 北東
- 幅員
- 6.50m
- 接面
- -
- 私道
-
- 私道
- -
- 持分
- -
- 面積
- -
- セットバック面積
-
- 状態
- -
- 幅
- -
- 面積
- -
- 借地期間・地代
-
- 借地機関条件
- -
- 借地権契約期間
- -
- 借地権満了日
- -
- 地代
- -
- 建築条件
- なし
- 土地現況
- 古家付
- 引渡条件
- -
- 引渡時期
- 相談
--- - 地目
- 宅地
- 地勢
- -
- 用途地域
- 第一種低層住居専用地域
- - 建ぺい/容積率
- 60%/100%
- 都市計画
- 市街化区域
- 建築許可理由
- -
- 土地権利
-
- 権利
- 所有権
- 備考
- -
- 再建築
- -
- 国土法届出
- 不要
- その他制限事項
- -
備考:- - 町会費
- --
- 備考
- ※前面道路に電柱及び支線あり
※既存建物:軽量鉄骨造瓦葺2階建、延床面積:69.75平米
- 取引態様
- 仲介
※金利につきましては各金融機関の審査金利及び融資金利により異なります。
実際の返済額は結果と異なりますので、資産計画の目安としてご利用ください。
詳しいお問い合わせは、こちらよりご相談ください。
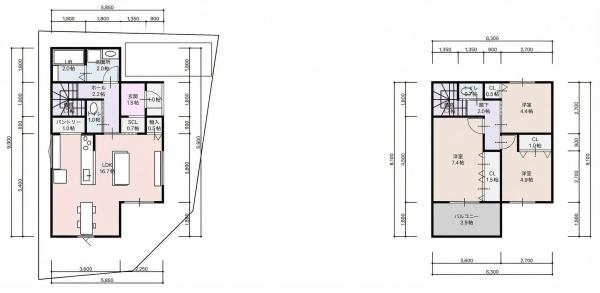
※建築条件土地の情報内に掲載されている、建物プラン例は、土地購入者の設定プランの参考の一例であって、プランの採用可否は任意です。
※建築条件付き土地とは、その土地に建築する建物の建築請負契約が、一定期間内に成立することを条件として売買される土地のことをいいます。建築請負契約成立に向けて設計プランを協議するため、土地購入者が自己の希望する建物の設計協議をするために必要な相当の期間の交渉期間が設定され、その期間内で希望を満たすプランが実現できたかどうかにより結論を出します。なお、この期間は概ね3ヶ月程度とされています。納得のいくプランが出来ず、建築請負契約が成立しない場合、土地売買契約は白紙に戻り、土地契約にかかった代金(土地代金、手付金など)は名目のいかんに関わらず、全て返却されます。
※建築条件付き土地とは、その土地に建築する建物の建築請負契約が、一定期間内に成立することを条件として売買される土地のことをいいます。建築請負契約成立に向けて設計プランを協議するため、土地購入者が自己の希望する建物の設計協議をするために必要な相当の期間の交渉期間が設定され、その期間内で希望を満たすプランが実現できたかどうかにより結論を出します。なお、この期間は概ね3ヶ月程度とされています。納得のいくプランが出来ず、建築請負契約が成立しない場合、土地売買契約は白紙に戻り、土地契約にかかった代金(土地代金、手付金など)は名目のいかんに関わらず、全て返却されます。
センチュリー21ジャパン加盟店
(公社)全日本不動産保証協会
(社)近畿地区不動産公正取引協議会
(財)住宅保証機構
AIG損害保険株式会社
(公社)全日本不動産保証協会
(社)近畿地区不動産公正取引協議会
(財)住宅保証機構
AIG損害保険株式会社






















